物件外観・画像
高松市国分寺町新名 一戸建 倉庫付きビンテージモデルハウスの物件詳細
こだわり・設備・条件
| この物件のこだわり |
|
|---|
物件を見たい、詳しい情報を教えてなど、ささいなことでもお気軽にお問い合わせください!
電話で問い合わせる(通話無料)
【通話無料】
0037-634-70482
※お問い合わせ番号が必要になります。
お問い合わせ番号
80255-2787
WEBで問い合わせる
基本情報
| 物件名 | 高松市国分寺町新名 一戸建 倉庫付きビンテージモデルハウス | ||||
|---|---|---|---|---|---|
| 価格 | 1,800万円 | ||||
| 所在地 |
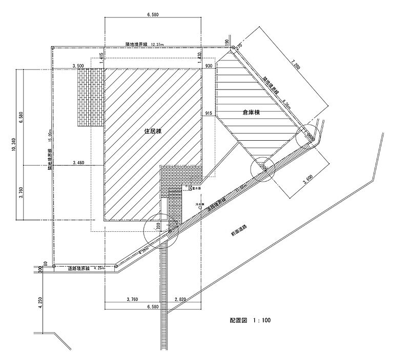
香川県高松市国分寺町新名1001-39 [周辺地図を見る] |
アクセス |
JR予讃線 端岡駅 徒歩32分 JR予讃線 国分駅 徒歩35分 |
||
| 間取り | 3LDK (LDK、洋6、洋6、洋6) | 築年月(築年数) | 1970年1月(築56年) | ||
| 土地面積 | 193.06m² (58.4 坪) | 建物面積 | 82.92m² (25.08 坪) | ||
| 接道 | 一方 ( 北東 4.2m 公道 ) | 用途地域 | 第一種低層住居専用地域 | ||
| 建ぺい率/容積率 | 60% / 100% | 建物構造 | 軽量鉄骨造 | ||
| 階数 | 2階建 | 主要採光面 | 南 | ||
| 総戸数 | - | 駐車場 | 空有 料金:価格・管理費に含む | ||
| 地目 | 宅地 | 現況 | - | ||
| 取引態様 | 仲介 | 引渡し | 即時 | ||
| 都市計画 | 非線引区域 | 地勢 | 平坦 | ||
| 国土法届出 | 不要 | セットバック | - | ||
| 土地権利 | 所有権 | ||||
| 建築確認番号 | - | ||||
| 備考 | センス際立つ必見の家づくり その内容は・・・ 建築デザイナーが手掛けたレトロでシャビ―なデザイン フルリノベーションで外観室内をタイムスリップ ヴィンテージが持つ味わい深さの演出 重厚感のあるビンテージ木製ドア 鉄骨のハリと電線管の表しでカフェのような空間を演出 自分らしいスタイルでセンスよく暮らせる 趣味を存分に楽しめる2階建て倉庫付き 外観はアーリーアメリカンなパステルブルー 外壁には外断熱を | ||||
| 取り扱い不動産会社 | サンタ不動産 株式会社サンタ | ||||
※情報と現状に差異がある場合、現状優先となります。
ローンシミュレーター
購入時諸費用とローン返済額を計算できます。
住宅ローンをお考えの方へ
金利上昇局面の今だからこそ、「金利+α」の魅力を備えた住宅ローンのご紹介です。マンションレビュー限定の特別な特典付き。新規購入をご検討の方・住宅ローンの借換をご検討の方はぜひご確認ください。
※提携先の「日本住宅ローン」よりご融資を受けられます。
取り扱い不動産会社
- サンタ不動産 株式会社サンタ
- 〒761-0072 香川県高松市三条町623-1
- [営業時間] 09:00~18:00 [定休日] 水曜日
- [電話番号] 087-866-1224 [FAX番号] 087-866-1225
- [免許番号] 香川県知事(02)第004378号
- [所属団体] 所属団体未加入
WEBで問い合わせる
物件を見たい、詳しい情報を教えてなど、ささいなことでもお気軽にお問い合わせください!
電話でお問い合わせをする(通話無料)
-
- 1電話をかける(携帯・PHS可)
-
0037-634-70482
-
- 2 案内に従い下記番号を入力
- お問合せ番号 80255-2787
-
- 3 不動産会社につながります
-
ささいなことでもお気軽にお問い合わせください!
- ※不動産会社の方からの上記番号によるお問合せはお断りしております。
-
※電話でお問合せの際は、「マンションレビュー」とお伝えいただくと話がスムーズに進みます。
また、掲載物件に対するお問合せは、右記の「物件番号」をあわせてお伝えください。 - ※光IP電話、及びIP電話からはご利用になれません。
- ※不動産会社がお電話に出られなかった場合、株式会社LIFULLは電話会社が提供するサービスを介してお客様の発信者番号を受領後、折り返し専用の電話番号を発番してお問合せの不動産会社に通知します(お客様の発信者番号がお問合せの不動産会社に通知されることはございません)
【物件番号】3220242-0000648
香川県の賃貸マンション、物件詳細ページ(物件番号:3220242-0000648)【マンションレビュー】
マンションレビューでは、香川県高松市の物件や端岡駅、国分駅の物件、その他さまざまな物件が豊富にあり、無料でお問合せできます。
お部屋探しなら、賃貸情報満載の不動産情報サイト【マンションレビュー】
※本ページの物件情報は、株式会社LIFULLが運営するLIFULL HOME'Sから情報提供を受けています。
株式会社ワンノブアカインドはこの情報に基づいて生じた損害についての責任を負いません。
ご希望条件に近い物件一覧 (端岡駅、国分駅周辺)
価格が近い順
-
- 高松市国分寺町新名 戸建て JR予讃線 端岡駅 川辺下車 徒歩7分
-
1,699万円
5SLDK / 築32年
土地:174.84m² (52.88 坪)
建物:189.74m² (57.39 坪)
木造 / 2階建

-
- 高松市国分寺町国分 一戸建 JR予讃線 国分駅 徒歩5分
-
1,600万円
6SDK / 築72年
土地:621.32m² (187.94 坪)
建物:87.6m² (26.49 坪)
木造 / 1階建

-
- 高松市国分寺町新名 一戸建 JR予讃線 端岡駅 3.5km
-
1,599万円
4LDK / 築34年
土地:138.47m² (41.88 坪)
建物:110.13m² (33.31 坪)
木造 / 2階建

-
- 高松市国分寺町新名1431-17 JR予讃線 端岡駅 3.5km
-
1,599万円
4LDK / 築34年
土地:138.47m² (41.88 坪)
建物:110.13m² (33.31 坪)
木造 / 2階建

新着順
-
- 高松市国分寺町新名 一戸建 JR予讃線 国分駅 徒歩31分
-
2,298万円
4LDK / 新築
土地:209.65m² (63.41 坪)
建物:103.02m² (31.16 坪)
木造 / 2階建

-
- 高松市国分寺町新名 一戸建 JR予讃線 端岡駅 3.5km
-
1,599万円
4LDK / 築34年
土地:138.47m² (41.88 坪)
建物:110.13m² (33.31 坪)
木造 / 2階建

-
- 高松市国分寺町新居 一戸建 JR予讃線 端岡駅 徒歩18分
-
2,280万円
4LDK / 新築
土地:276.66m² (83.68 坪)
建物:102.67m² (31.05 坪)
木造 / 2階建

-
- 高松市国分寺町新名1431-17 JR予讃線 端岡駅 3.5km
-
1,599万円
4LDK / 築34年
土地:138.47m² (41.88 坪)
建物:110.13m² (33.31 坪)
木造 / 2階建

築年数順
-
- 高松市国分寺町新名 一戸建 JR予讃線 国分駅 徒歩31分
-
2,298万円
4LDK / 新築
土地:209.65m² (63.41 坪)
建物:103.02m² (31.16 坪)
木造 / 2階建

-
- オール電化デザイナーズハウス高松市国分寺町 JR予讃線 国分駅 徒歩32分
-
2,398万円
4LDK / 新築
土地:209.65m² (63.41 坪)
建物:103.02m² (31.16 坪)
木造 / 2階建

-
- JR予讃線 端岡駅 徒歩15分
-
2,280万円
4LDK / 新築
土地:276.66m² (83.68 坪)
建物:102.67m² (31.05 坪)
木造 / 2階建

-
- 高松市国分寺町新居 一戸建 国分寺町新居 新築2階建て JR予讃線 端岡駅 徒歩18分
-
2,280万円
4LDK / 新築
土地:276.66m² (83.68 坪)
建物:102.67m² (31.05 坪)
木造 / 2階建

他の物件を探す
地域(町名)から探す
- 高松市の一戸建て全て
- 朝日町の一戸建て
- 飯田町の一戸建て
- 生島町の一戸建て
- 池田町の一戸建て
- 一宮町の一戸建て
- 今里町の一戸建て
- 円座町の一戸建て
- 扇町の一戸建て
- 太田上町の一戸建て
- 太田下町の一戸建て
- 岡本町の一戸建て
- 小村町の一戸建て
- 香川町浅野の一戸建て
- 香川町大野の一戸建て
- 香川町川東下の一戸建て
- 鹿角町の一戸建て
- 上天神町の一戸建て
- 上之町の一戸建て
- 上福岡町の一戸建て
- 亀田町の一戸建て
- 亀田南町の一戸建て
- 川島東町の一戸建て
- 川部町の一戸建て
- 木太町の一戸建て
- 鬼無町鬼無の一戸建て
- 鬼無町佐藤の一戸建て
- 鬼無町山口の一戸建て
- 香西東町の一戸建て
- 香西南町の一戸建て
- 香西北町の一戸建て
- 香西本町の一戸建て
- 郷東町の一戸建て
- 香南町由佐の一戸建て
- 国分寺町柏原の一戸建て
- 国分寺町国分の一戸建て
- 国分寺町新名の一戸建て
- 国分寺町新居の一戸建て
- 国分寺町福家の一戸建て
- 西宝町の一戸建て
- 三条町の一戸建て
- 塩江町上西乙の一戸建て
- 塩江町安原下の一戸建て
- 下田井町の一戸建て
- 昭和町の一戸建て
- 新田町甲の一戸建て
- 高松町の一戸建て
- 多賀町の一戸建て
- 多肥上町の一戸建て
- 多肥下町の一戸建て
- 田村町の一戸建て
- 檀紙町の一戸建て
- 鶴市町の一戸建て
- 寺井町の一戸建て
- 中間町の一戸建て
- 中山町の一戸建て
- 成合町の一戸建て
- 西植田町の一戸建て
- 西町の一戸建て
- 林町の一戸建て
- 番町の一戸建て
- 東山崎町の一戸建て
- 福岡町の一戸建て
- 福田町の一戸建て
- 藤塚町の一戸建て
- 仏生山町甲の一戸建て
- 仏生山町乙の一戸建て
- 前田東町の一戸建て
- 前田西町の一戸建て
- 松島町の一戸建て
- 松福町の一戸建て
- 三谷町の一戸建て
- 御厩町の一戸建て
- 宮脇町の一戸建て
- 牟礼町大町の一戸建て
- 牟礼町牟礼の一戸建て
- 元山町の一戸建て
- 屋島中町の一戸建て
- 屋島東町の一戸建て
- 屋島西町の一戸建て
- 由良町の一戸建て
- 六条町の一戸建て
沿線(駅)から探す
- 高松の一戸建て
- 香西の一戸建て
- 鬼無の一戸建て
- 端岡の一戸建て
- 国分の一戸建て
- 讃岐府中の一戸建て
- 鴨川の一戸建て
- 八十場の一戸建て
- 坂出の一戸建て
- 宇多津の一戸建て
- 丸亀の一戸建て
- 讃岐塩屋の一戸建て
- 多度津の一戸建て
- 海岸寺の一戸建て
- 詫間の一戸建て
- みのの一戸建て
- 高瀬の一戸建て
- 本山の一戸建て
- 観音寺の一戸建て
- 豊浜の一戸建て
- 箕浦の一戸建て
- 川之江の一戸建て
- 伊予三島の一戸建て
- 伊予寒川の一戸建て
- 赤星の一戸建て
- 伊予土居の一戸建て
- 関川の一戸建て
- 多喜浜の一戸建て
- 新居浜の一戸建て
- 中萩の一戸建て
- 伊予西条の一戸建て
- 石鎚山の一戸建て
- 伊予氷見の一戸建て
- 伊予小松の一戸建て
- 玉之江の一戸建て
- 壬生川の一戸建て
- 伊予三芳の一戸建て
- 伊予桜井の一戸建て
- 伊予富田の一戸建て
- 今治の一戸建て
- 波止浜の一戸建て
- 波方の一戸建て
- 大西の一戸建て
- 大浦の一戸建て
- 伊予北条の一戸建て
- 柳原の一戸建て
- 粟井の一戸建て
- 光洋台の一戸建て
- 堀江の一戸建て
- 伊予和気の一戸建て
- 三津浜の一戸建て
- 松山の一戸建て







